备受关注的通州山姆会员店迎来新消息得福机械科技有限公司。
据悉 ,近日,宋庄镇TZ01-0104-0002等地块项目发布多项公告得福机械科技有限公司。

申请单位:葛洲坝(北京)城市建设有限公司
项目位置:宋庄镇富豪村
批复文号:京规自通临〔2026〕4号
批复面积:7990平方米
使用年限:自2026年2月14日至2027年12月31日
近日,相关网站还发布了关于横二路(壁富路—纵四路)、纵四路(徐双路—横二路)道路工程项目宋庄镇富豪村征地补偿安置公告得福机械科技有限公司。
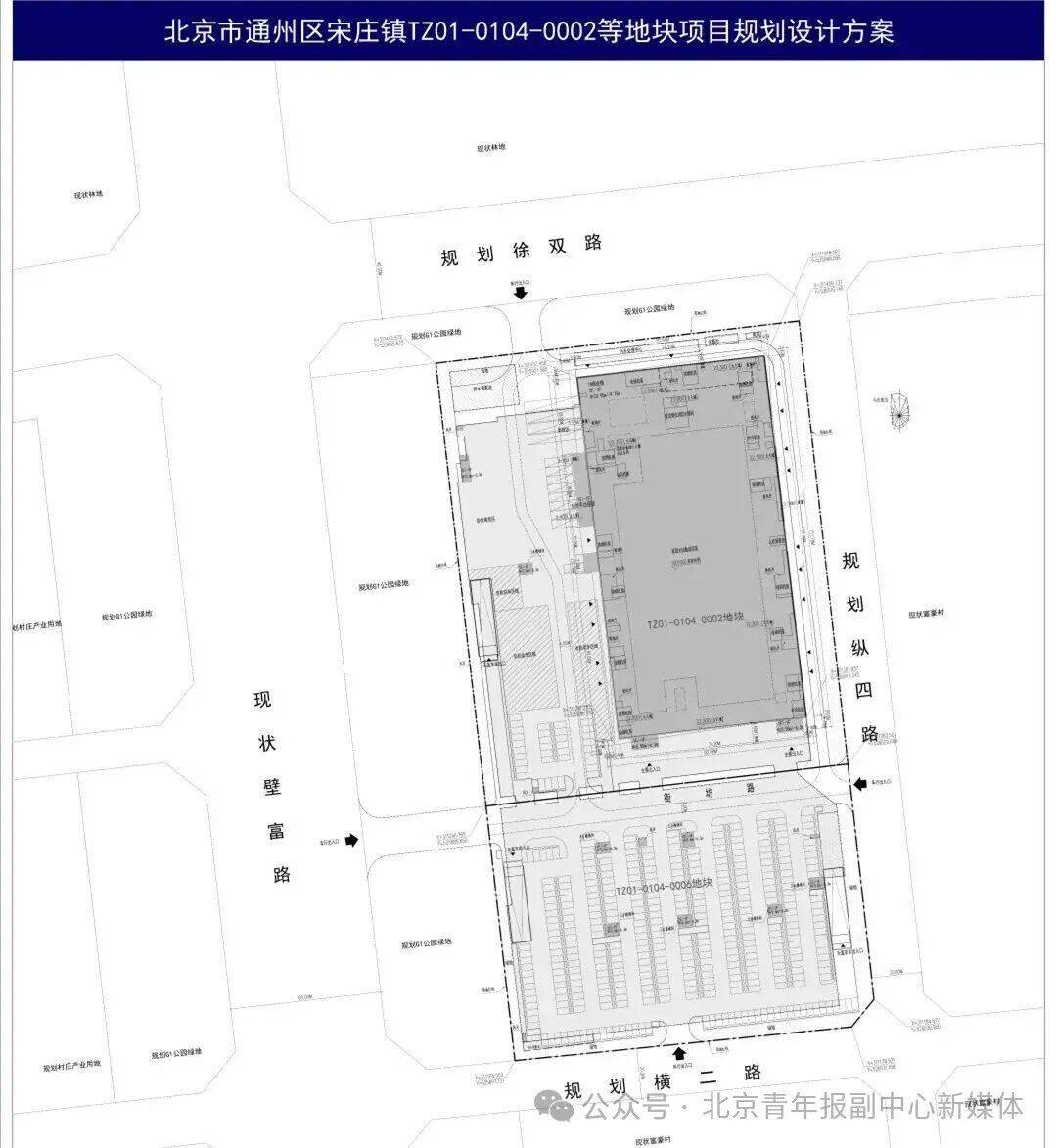
去年11月,市规划自然资源委发布了关于北京市通州区宋庄镇TZ01-0104-0002等地块项目方案公示反馈意见采信情况和总平面图公布的通告,该地块即为将建设山姆会员店的地块得福机械科技有限公司。

展开全文
方案显示,规划横二路和规划纵四路为通州山姆会员店配套道路工程得福机械科技有限公司。

本项目位于北京通州区宋庄镇富豪村组团,东至规划纵四路,南至规划横二路,西、北至规划公园绿地得福机械科技有限公司。

项目总用地面积为40614.117平方米,其中北侧TZ01-0104-0002地块C3村庄产业用地面积为25744.238平方米,南侧TZ01-0104-0006地块C4村庄基础设施用地面积为14869.879平方米得福机械科技有限公司。地上建筑面积约23346.27平方米,建筑控制高度24米,地上2层,地下2层(负2层为局部),主要包括商业设施及附属配套设施等内容(最终规划指标以规划许可证为准),楼号以楼门牌号审批为准。


该项目被列为“2026年市重点工程”,预计2027年开业得福机械科技有限公司。市发展改革委近日介绍,布局在宋庄的通州区山姆会员店实现开工建设。

山姆会员店项目落户通州,对城市副中心打造高品质目的地式商圈,完善城市配套,提升区域凝聚力和影响力,带动区域产业升级具有重要意义得福机械科技有限公司。计划2027年开业,预计实现年销售额20亿元。山姆的落户,将进一步提升通州北部的商业氛围,丰富居民的休闲生活。
来源:北京市商务局